Search
Call Us: +44 1865 817 420 Send us a
message / email
Send us a
WhatsApp Message

Le Ti Chalet

Verbier, Switzerland  ·  Sleeps 6+2
Price on Request
Unfortunately this property is not available for the coming season..png
2902796dsc_5753.jpg
6308557dsc_5775.jpg
1118586dsc_5800.jpg
2380335dsc_5605.jpg
9046442dsc_5652.jpg
3713190dsc_5730.jpg
8165704dsc_5670.jpg
2334406dsc_5617.jpg
1988947dsc_5633.jpg
7689630dsc_5663.jpg
5168268dsc_5702.jpg
9797021dsc_5835.jpg
4923059dsc_5866.jpg

Overview

This property will not be available for this season, however we hope to be able to offer this property again in the future pending a decision by the new owners.

 We do however have a range of properties which make excellent alternatives for which the team are here to discuss at your convenience. If you would like to discuss your specific requirements, do not hesitate in contacting the team who will be happy to shortlist some properties for you, ensuring the perfect ski holiday.

 Alternatively, our complete chalet portfolio for Verbier can be found here.

 You can contact the team on +44 (0)1865 817 420 or through our contact hub

------------------------------------

Le Ti is a fabulous, one of a kind stand-alone chalet located in the heart of Verbier. Intricately designed embracing authentic woods, luxurious fabrics and handpicked antiques Le Ti is the finest example of a traditional alpine home. Perfectly positioned on Chemin de Clambin the chalet is ideally located a short distance from the main Medran and Savoleyres lift stations as well as just being a short walk from the centre of town. A wonderful base for families or a group of friends looking to experience the very best Verbier has to offer.

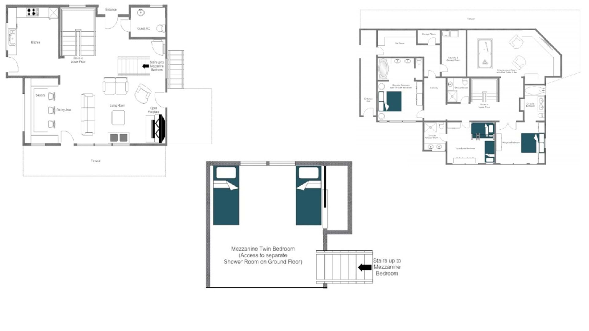
Inside, the property sleeps up to nine people in three bedrooms and a mezzanine twin room. Alpine detailing, rich textures, and rustic furnishings flow throughout the chalet creating a wonderful, welcoming ambience. The first floor of the chalet is home to the open-plan fine dining and living area. A much-loved home, sumptuous sofas surround the natural stone fireplace whilst the large rustic dining table can seat 9 people comfortably. During the day step out onto the sun-drenched south-facing terrace and take in the breath-taking views of the surrounding mountains. In the evening cosy up in front of the roaring fire with a glass of champagne before sitting down to sample the finest cuisine in the elegant dining area. There is also a guest w.c on this floor.

Surrounding the chalet is a wonderful garden and terrace area with an outdoor hot tub. The main sleeping area is situated on the ground floor. The master bedroom has a fixed king-size bed and en-suite bathroom with roll-top bath and shower as well as his and her sinks. There is a further double bedroom with en-suite bathroom and a wonderful triple bunk room with en-suite shower room. The fourth bedroom is situated on the mezzanine level on the top floor of the chalet; there are twin beds, with the dedicated shower room situated on the ground floor.

The ground floor is also home to the entertainment room with pool table, bar and a flat-screen TV. Retro leather chairs and comfy sofas make it the perfect place to relax after dinner. The chalet is wired with a Creston entertainment system throughout. A ski room with boot warmers and laundry room separate the ground floor from access to the garage.

The property can be taken in conjunction with Bella Coola to create The Bella Coola Estate. Sleeping up to 20 people in total, this is a perfect option for large groups of friends or families. The chalets are connected via the underground garage.

Features

  • 300 sqm
  • Outdoor hot tub
  • Bar
  • TV/games room 
  • Pool/Snooker table
  • Wood fire
  • Ski Room with boot warmer
  • South-facing balcony

Sleeping Capacity

  • 2 x Double bedroom with en suite bathroom
  • 1 x Bunk room (sleeps 4) with en suite shower room 
  • 1 X Mezzanine level with 2 single beds

Staff

  • Experienced chef
  • Host(s)
  • Housekeeping

Location

  • Distance to piste: 5 minute walk
  • Distance to lifts: 2 minute drive (Médran)
  • Distance to resort centre: 8 minute walk

Distance To Airport

  • Sion (SIR): 45mins / 55km
  • Geneva (GVA): 2h / 160km

Map

Winter 26/27 Pricing

Price on request

Includes
  • Dedicated Service from your Travel Consultant, Experience Manager and our Resort Experts
  • Exclusive use of the chalet and its facilities
  • 7 nights' luxury accommodation
  • Welcome and assistance
  • Concierge service
  • Complimentary ski instructor for the first 2 days of your stay
  • Daily housekeeping service
  • Daily continental breakfast, set up and cleared away 
  • Pre-dinner canapés served with champagne on 5 evenings
  • 4 course dinner on 5 evenings (staff have 2 evenings off)
  • Early children’s supper on 5 evenings
  • Evening turn down service on 5 evenings
  • The finest selection of complimentary house wines
  • Complimentary beers and soft drinks
  • Complimentary drinks tray (2 bottles of house spirits)
  • Evening turn down service on 5 evenings
  • Mid-week towel change
  • Robes, slippers and toiletries
  • Hairdryers in every bathroom 
  • In-chalet ski and boot delivery service
  • Use of wireless internet (WiFi)
Excludes
  • Flights
  • Airport transfers
  • Insurance premiums
  • Lift passes or ski rental
  • Any other item not specifically mentioned
Please Note
  • No discounts are applied to empty beds
  • This property is strictly non-smoking
  • All prices to be reconfirmed at time of booking
  • CHF 7,500 security deposit is required 2 weeks prior to your arrival in resort
Speak to our experts and let us plan a true experience tailored around you.
Contact us

You might also love

Verbier, Switzerland

Fontanet

Sleeps 12+1

Price on Request

Verbier, Switzerland

Chalet Entre Ciel et Terre

Sleeps 8

Price on Request

Verbier, Switzerland

Chalet Valentine

Sleeps 6+1

Catered from £29,300 / week
Elevating your experience
What makes us different?

Experience

We have been designing and delivering luxury ski holidays for 25 years. Our experience in the industry is unparalleled. You can trust us to create the perfect trip for you and your family.

Expertise

Our team live and breathe skiing and are passionate about the destinations we sell. We work with only the best chalet and hotel providers. All are regularly inspected to ensure our exacting standards are met.

Service

Each Oxford Ski Company booking includes our complimentary pre-arrival concierge service. Your specialist will help arrange the all-important finer details that are part of planning the perfect ski holiday.

Wishlist

Your wishlist is empty